3.7.1 廠房的安全出口應分散布置。每個防火分區或一個防火分區的每個樓層,其相鄰2個安全出口最近邊緣之間的水平距離不應小于5m。【圖示】
3.7.2 廠房內每個防火分區或一個防火分區內的每個樓層,其安全出口的數量應經計算確定,且不應少于2個;當符合下列條件時,可設置1個安全出口:
1 甲類廠房,每層建筑面積不大于100㎡,且同一時間的作業人數不超過5人;
2 乙類廠房,每層建筑面積不大于150㎡,且同一時間的作業人數不超過10人;
3 丙類廠房,每層建筑面積不大于250㎡,且同一時間的作業人數不超過20人;
4 丁、戊類廠房,每層建筑面積不大于400㎡,且同一時間的作業人數不超過30人;
5 地下或半地下廠房(包括地下或半地下室),每層建筑面積不大于50㎡,且同一時間的作業人數不超過15人。
3.7.3 地下或半地下廠房(包括地下或半地下室),當有多個防火分區相鄰布置,并采用防火墻分隔時,每個防火分區可利用防火墻上通向相鄰防火分區的甲級防火門作為第二安全出口,但每個防火分區必須至少有1個直通室外的獨立安全出口。【圖示】
3.7.4 廠房內任一點至最近安全出口的直線距離不應大于表3.7.4的規定。
[注釋]
1.L為廠房內任一點至最近安全出口的直線距離;
2.a1+a2≤L。
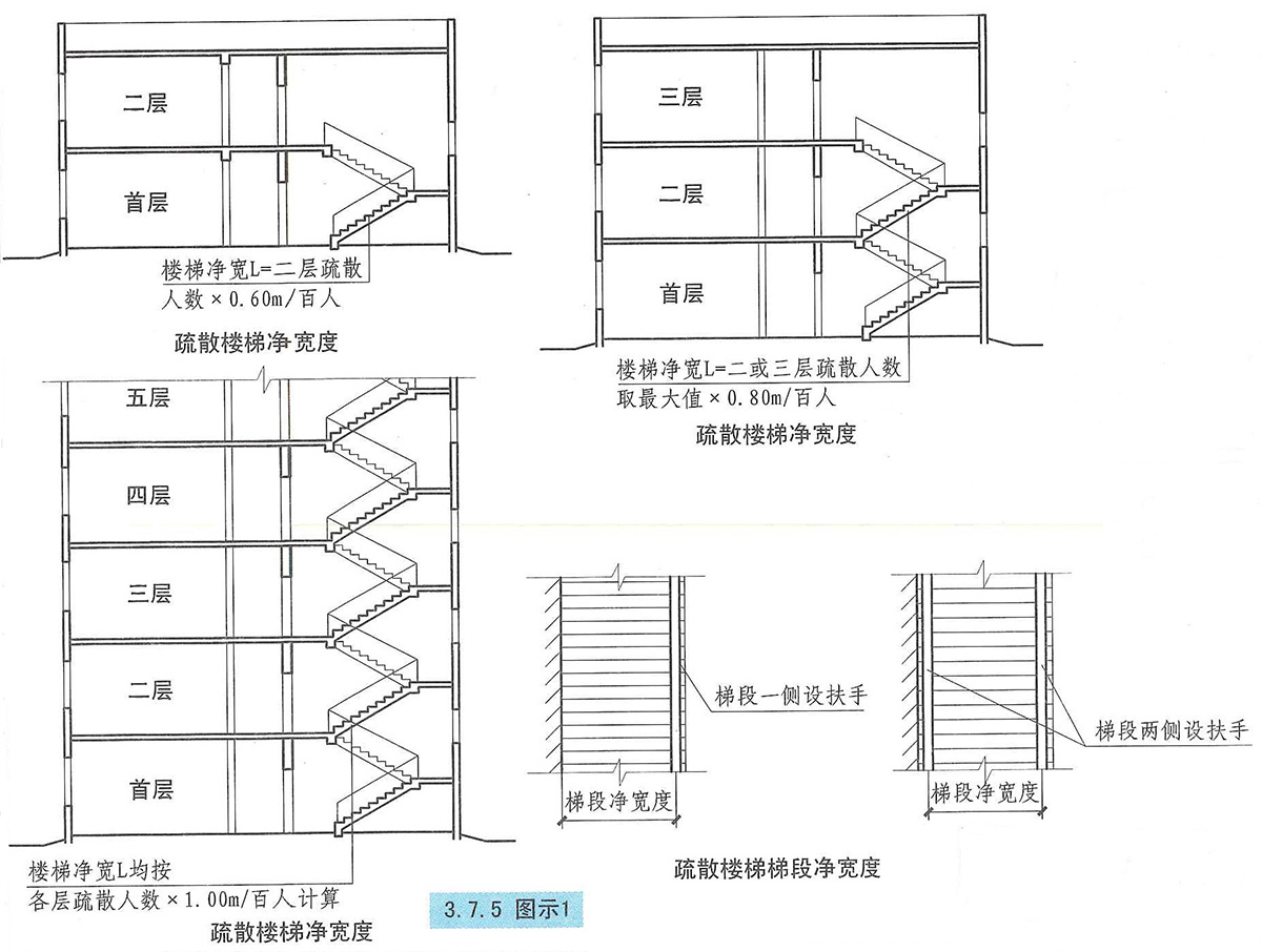
3.7.5 廠房內疏散樓梯、走道、門的各自總凈寬度,應根據疏散人數按每100人的最小疏散凈寬度不小于表3.7.5的規定計算確定【圖示1】。

但疏散樓梯的最小凈寬度不宜小于1.10m,疏散走道的最小凈寬度不宜小于1.40m,門的最小凈寬度不宜小于0.90m。
當每層疏散人數不相等時,疏散樓梯的總凈寬度應分層計算,下層樓梯總凈寬度應按該層及以上疏散人數最多一層的疏散人數計算。
首層外門的總凈寬度應按該層及以上疏散人數最多一層的疏散人數計算,且該門的最小凈寬度不應小于1.20m。【圖示2】
3.7.6 高層廠房和甲、乙、丙類多層廠房的疏散樓梯應采用封閉樓梯間或室外樓梯。建筑高度大于32m且任一層人數超過10人的廠房,應采用防煙樓梯間或室外樓梯。