凈化和空調合一的方案其凈化空調機組(AHU)集中設置在空調機房內,全部的送風均在凈化空調機組內進行過濾和熱、濕處理,然后由龐大的送風管將全部的送風輸送到潔凈室的吊頂上部,再經過設在潔凈室吊頂上的終端高效過濾器或高效過濾器送風口送到潔凈室內,來實現潔凈室工藝生產所需要的溫度、濕度、潔凈度和房間的壓差,潔凈室的回風經回風口、回風管再接回到空調機房的空調機組內與新風混合后重復進行過濾和熱、濕處理。凈化和空調合一的方案又可分為全新風方案(直流系統);一次回風方案;一、二次回風方案和(MAU)加(RAU)方案等四種不同的凈化空調送風型式。這些送風方案是當前潔凈室特別是非單向流潔凈室中應用最廣泛的凈化空調送風方案。這些送風方案的系統劃分明確,風量和溫、濕度控制調節都比較單一。

但當潔凈度級別較高、送風量較大時,存在著空調機房占面積大,送、回風管體積大占面積和占空間大,送、回風管道長,送風機的壓力高,噪音大,風量輸送耗電量大等問題。因此,這些送風方案較適用在低級別的非單向流潔凈室的送風,對5級以上的單向流潔凈室送風就不太經濟合理了。
幾種典型的潔凈空氣處理系統
AHU全新風的凈化空調送風方案(直流系統)全新風凈化空調送風方案是用于特殊的不允許回風的潔凈室的送風方案中。如:潔凈室內工藝生產類別為甲、乙類火災危險等級或工藝過程產生有劇毒等有害物不允許回風的潔凈送風系統中。其原理圖和焓濕圖如下。
示意圖 焓濕(i-d)圖
AHU一次回風的凈化空調送風方案
一次回風的送風方案多用在潔凈室內的發熱量或產濕量很大,消除室內余熱或余濕的送風量大于或等于凈化送風量的低潔凈度等級的非單向流潔凈室中。此方案的原理圖和焓濕圖如下:

示意圖 焓濕(i-d)圖
AHU一、二次回風的凈化空調送風方案
為了節能、消除空氣熱濕處理過程中的冷熱相互抵消,在潔凈室凈化送風量大于消除余熱、余濕的空調送風量時,最好采用一、二次回風方案,將二次混合點設計在系統送風點上,該方是最節能、最經濟的送風方案。其原理圖和焓濕圖如下:

示意圖 焓濕(i-d)圖
MAU+RAU的凈化空調送風方案
此方案多用于多個潔凈室其潔凈度,溫、濕度要求不同,室內的產熱量和產濕量也不盡相近,為了確保每個潔凈室的潔凈度,溫、濕度及其精度的要求,就要設置多個循環機組,循環機組的送風量是能消除室內余熱、余濕,保證室內溫、濕度同時又能滿足室內潔凈度要求的凈化空調送風量,在循環機組內設置必要的熱、濕處理設備,用來補充新風機組熱、濕處理的不足和保證該潔凈室溫、濕度精度的微調節。
示意圖 焓濕(i-d)圖
凈化送風和空調送風分離方案
凈化送風和空調送風分離方案,此方案通常被稱作半集中式或分散式的送風方案。
為了大大地節省運行時的能耗,將消除潔凈室內余熱、余濕的空調送風量(通常大大地小于潔凈室的凈化送風量),由設在空調機房內的新風機組(MAU)進行必要的凈化和熱濕處理,而將占總送風量50~90%的保證潔凈室潔凈度的凈化送風量由設在潔凈室附近的循環機組進行凈化和補充的熱、濕處理,或直接采用吊頂上的FFU(風機過濾器機組)和干盤管來解決潔凈室的潔凈度等級和溫度的微調節。
此方案是凈化送風與空調送風相分離的方案,不僅可節省運行的能耗,而且大大地減少了空調機房面積,省掉了龐大的送、回風管道,降低了潔凈室的空間高度。此凈化空調送風方案又可分為:空調機組(AHU)(MAU)加風機過濾器機組(FFU)方案,新風機組(MAU)加循環機組(RAU)加(FFU)方案;新風機組(MAU)加風機過濾器機組(FFU)加干冷盤管(DC)方案等三種送風方案。
其送風原理圖和焓濕圖如下:
示意圖 焓濕(i-d)圖
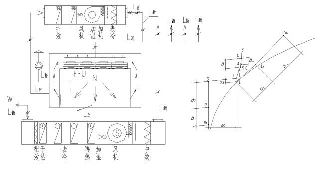
新風機組(MAU)加循環機組(RAU)加風機過濾器單元(FFU)凈化空調送風方案
此方案多用于多個潔凈室其潔凈度,溫、濕度要求不同,室內的產熱量和產濕量也不盡相近,為了確保每個潔凈室的潔凈度,溫、濕度及其精度的要求,就要設置多個循環機組,循環機組的送風量只是消除室內余熱余濕的空調送風量,并且在機組內設置必要的熱、濕處理設備,用來補充新風機組熱、濕處理的不足和保證該潔凈室溫、濕度精度的微調節。
此方案的新風機組設在空調機房內,這些潔凈室所需的新風全部由新風機組(MAU)進行凈化和熱濕的集中處理。然后分配到每一個循環機組內與其回風混合。新風機組的新風量不僅僅要補充各潔凈室的排風還要保證每個潔凈室的正壓。
示意圖 焓濕(i-d)圖
新風機組(MAU)加風機過濾器機組(FFU)加干冷盤管(DC)的凈化空調送風方案
此方案是新風機組將新風處理到潔凈室熱濕比線與相對濕度95%線交點以下,新風機組不僅將本身的濕負荷去掉,而且還負擔潔凈室內產生的濕負荷,新風機組要確保潔凈室所要求的相對濕度。而新風機組熱處理不足部分的干冷負荷將由設在潔凈室下夾層或吊頂上的干表冷器來補充。因干表冷器是設在FFU循環空氣通過的吊頂上或夾道內,因此,干表冷所彌補的干冷負荷被循環空氣帶到潔凈室內。
示意圖 焓濕(i-d)圖